BUDAPEST, LAKÓÉPÜLET A NYÁRI PÁL UTCÁBAN
ÉPÜLET MEGNEVEZÉS:
LAKÓÉPÜLET A NYÁRI PÁL UTCÁBAN
TERVEZÉS TÍPUSA:
PÁLYÁZAT
MEGBÍZÓ:
-
HELYSZÍN:
BUDAPEST V. KERÜLET, NYÁRI PÁL UTCA 12.
ALAPTERÜLET:
2 274 m2
TERVEZÉS IDEJE:
2005
ÉPÍTÉSZ TERVEZŐK:
DOBRÁNYI ÁKOS, MALATA GYULA, SZÁSZ JUDIT, ROMHÁNYI TAMÁS
SZAKÁGI KONZULENSEK:
-
LAKÓÉPÜLET A NYÁRI PÁL UTCÁBAN
TERVEZÉS TÍPUSA:
PÁLYÁZAT
MEGBÍZÓ:
-
HELYSZÍN:
BUDAPEST V. KERÜLET, NYÁRI PÁL UTCA 12.
ALAPTERÜLET:
2 274 m2
TERVEZÉS IDEJE:
2005
ÉPÍTÉSZ TERVEZŐK:
DOBRÁNYI ÁKOS, MALATA GYULA, SZÁSZ JUDIT, ROMHÁNYI TAMÁS
SZAKÁGI KONZULENSEK:
-
A tervezett épület telepítésének kialakításakor figyelembe vettük a telek adottságait, a szomszédos épületek tűzfalainak, és belső udvarainak elhelyezkedését, és az Építési Szabályzatban meghatározott illeszkedési szabályokat.
A meglévő üres telek kicsiny telekmérete, telek szélessége és a szűk utca szélesség miatt viszonylag kedvezőtlenek a tervezett épület bevilágítási adottságai, ezért a tervezés során olyan megoldást kerestünk, amelynek alkalmazásával a tervezett beépítés a lehető legkevésbé korlátozza. Törekedtünk a belső udvari homlokzatoknak az utcaival legalább egyenértékű, vagy annál kedvezőbb kialakítására.
A meglévő üres telek kicsiny telekmérete, telek szélessége és a szűk utca szélesség miatt viszonylag kedvezőtlenek a tervezett épület bevilágítási adottságai, ezért a tervezés során olyan megoldást kerestünk, amelynek alkalmazásával a tervezett beépítés a lehető legkevésbé korlátozza. Törekedtünk a belső udvari homlokzatoknak az utcaival legalább egyenértékű, vagy annál kedvezőbb kialakítására.
A tervezett beépítés lényege, hogy a jobboldali, szomszédos belső udvarhoz csatlakozóan egy-egy épületszárnyat terveztünk a utcafronton és a hátsó telekhatáron. A két szárnyat az oldalhatár mentén emelkedő lépcsőház-közlekedő köti össze. Így a belső udvar szélessége a lehető legnagyobb lett.
Az utcafronton a telekhatár mintegy 1,5 méterrel hátrébb csatlakozik a jobboldali szomszédhoz. A földszinten kötelezően tartandó visszahúzott homlokzati sík emeletenként fokozatosan előreugrik a képzeletbeli, „ideális” síkra, mely a két csatlakozó épületet köti össze. A legfelső szinten, az utca felé – a szomszédokhoz illeszkedően – visszahúztuk a homlokfalat. Az épület homlokzatának déli irányba történő dőlése-csavarodása a belső udvarokon is érvényesül. Ezzel tovább javul a megvilágítás.
Az utcafronton a telekhatár mintegy 1,5 méterrel hátrébb csatlakozik a jobboldali szomszédhoz. A földszinten kötelezően tartandó visszahúzott homlokzati sík emeletenként fokozatosan előreugrik a képzeletbeli, „ideális” síkra, mely a két csatlakozó épületet köti össze. A legfelső szinten, az utca felé – a szomszédokhoz illeszkedően – visszahúztuk a homlokfalat. Az épület homlokzatának déli irányba történő dőlése-csavarodása a belső udvarokon is érvényesül. Ezzel tovább javul a megvilágítás.
A beépítés tervezésekor tudatosan vállaltuk, hogy a kiírásban kívánatosnak tartott 50-60 m2-es átlagos lakás-alapterületet meghaladjuk. Az így kialakuló lakások a jobb bevilágításnak és a tisztább alaprajzi elrendezésnek köszönhetően véleményünk szerint nem lesznek nehezebben értékesíthetőek.
A lépcsőház-közlekedő az utcai és az udvari üvegfalak nyitásával vagy zárásával szabályozhatóvá teszi a belső udvar klímáját, biztosítja a légutánpótlást.
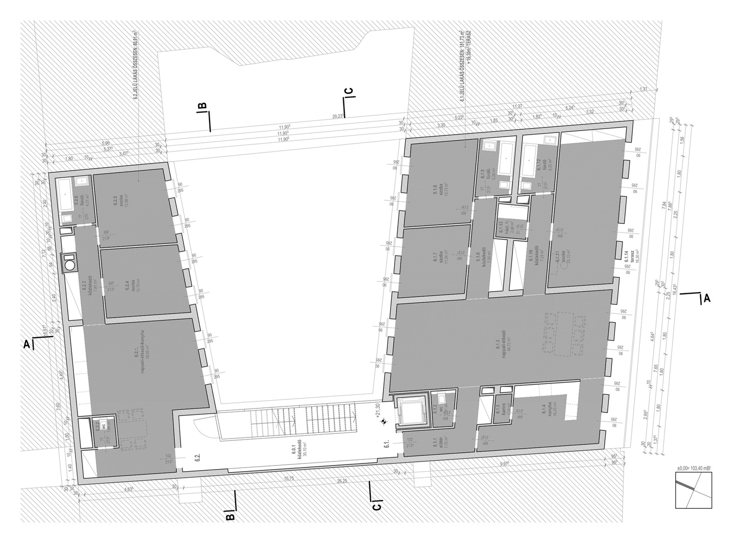
A közlekedési rendszerből adódóan az 1. és az 5. emelet között szintenként 3-3 lakás található, melyek közül kettő a belső udvarra, egy az utcára néz. Az udvari lakások az utcánál szélesebb belső kertre nyílnak, így talán még az utcainál is értékesebbek. A 6. emeleten az utcai szárnyban egy nagylakás kapott helyet, tetőterasszal.
A legfelső tetőn pedig az egész lakóközösség által használható tetőterasz alakul ki, anélkül, hogy az alatta lévő privát teret zavarná.
BUDAPEST, LAKÓÉPÜLET A NYÁRI PÁL UTCÁBAN











