BUDAPEST, ANSIII ÉPÜLET - TARTALÉK LÉGIFORGALMI IRÁNYÍTÓ KÖZPONT
ÉPÜLET MEGNEVEZÉS:
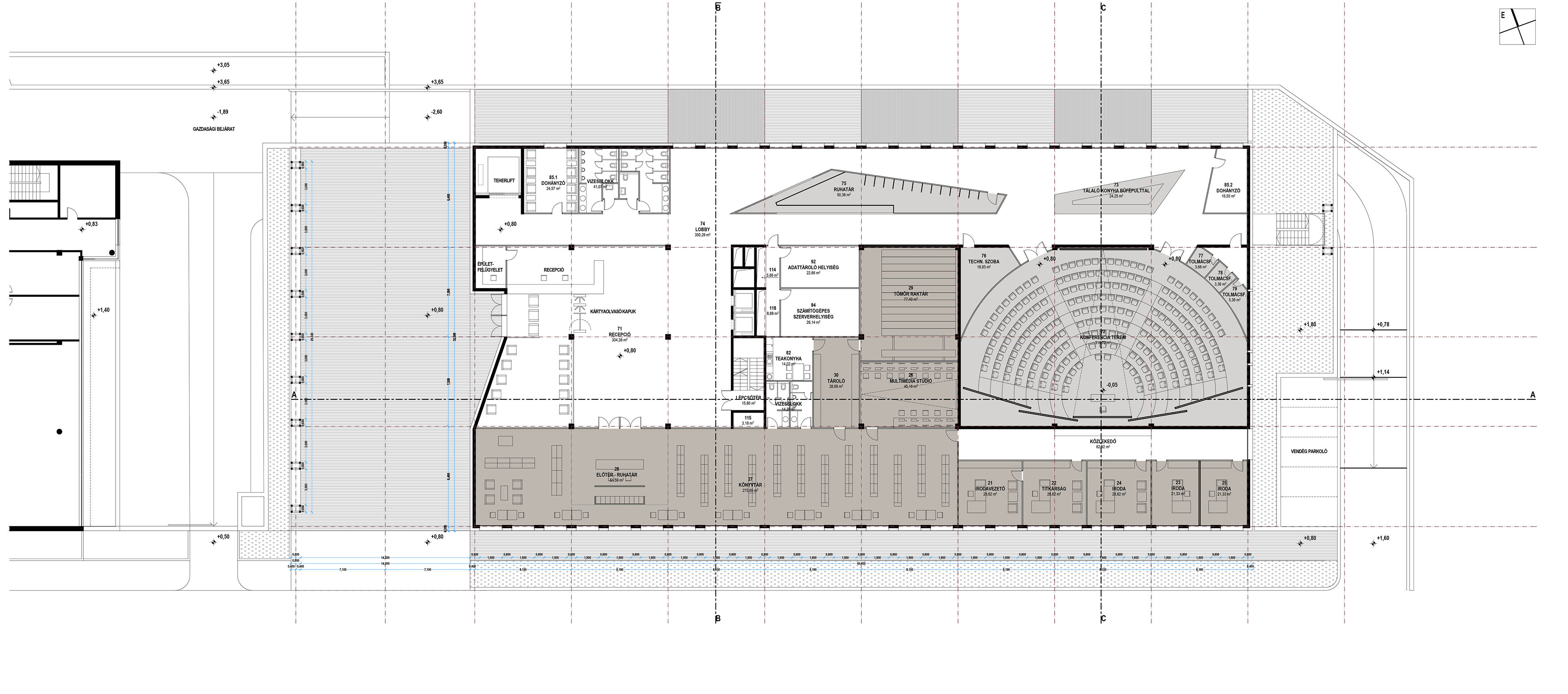
ANSIII ÉPÜLET, TARTALÉK LÉGIFORGALMI IRÁNYÍTÓ KÖZPONT
TERVEZÉS TÍPUSA:
PÁLYÁZAT
MEGBÍZÓ:
HUNGAROCONTROL MAGYAR LÉGIFORGALMI SZOLGÁLAT ZRT.
HELYSZÍN:
BUDAPEST XVIII. KERÜLET, IGLÓ UTCA
ALAPTERÜLET:
13 700 m2
TERVEZÉS IDEJE:
2007
ÉPÍTÉSZ TERVEZŐK:
DOBRÁNYI ÁKOS, SZÁSZ JUDIT, ROMHÁNYI TAMÁS, KULINYI DÁNIEL
SZAKÁGI KONZULENSEK:
BIMBÓ GÁBOR, KÁDAS KÁROLY, SAX DEZSŐ
ANSIII ÉPÜLET, TARTALÉK LÉGIFORGALMI IRÁNYÍTÓ KÖZPONT
TERVEZÉS TÍPUSA:
PÁLYÁZAT
MEGBÍZÓ:
HUNGAROCONTROL MAGYAR LÉGIFORGALMI SZOLGÁLAT ZRT.
HELYSZÍN:
BUDAPEST XVIII. KERÜLET, IGLÓ UTCA
ALAPTERÜLET:
13 700 m2
TERVEZÉS IDEJE:
2007
ÉPÍTÉSZ TERVEZŐK:
DOBRÁNYI ÁKOS, SZÁSZ JUDIT, ROMHÁNYI TAMÁS, KULINYI DÁNIEL
SZAKÁGI KONZULENSEK:
BIMBÓ GÁBOR, KÁDAS KÁROLY, SAX DEZSŐ
BUDAPEST, ANSIII ÉPÜLET TARTALÉK LÉGIFORGALMI IRÁNYÍTÓ KÖZPONT














