NYÍREGYHÁZA, TRELLEBORG VIBRACOUSTIC LÉGRUGÓGYÁR
ÉPÜLET MEGNEVEZÉS:
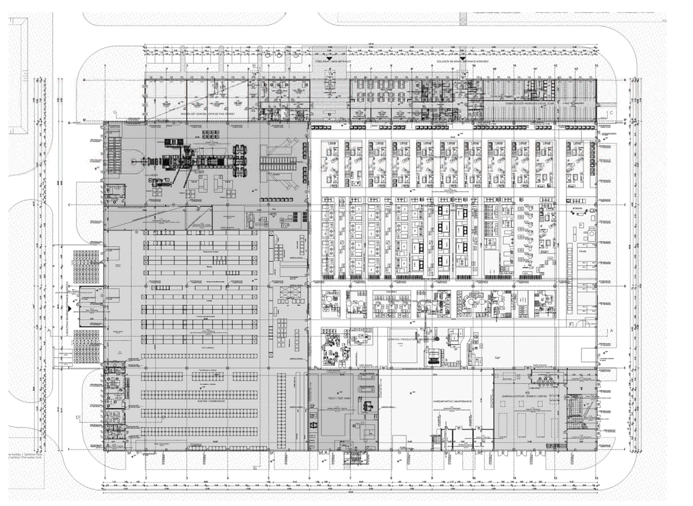
TRELLEBORG VIBRACOUSTIC LÉGRUGÓGYÁR
TERVEZÉS TÍPUSA:
GENERÁLTERVEZÉS: ÓBUDA GROUP
PROJEKTVEZETŐ: DOBRÁNYI ÁKOS
ENGEDÉLYEZÉSI TERV + SPECIFIKÁCIÓ
MEGBÍZÓ:
ÓBUDA GROUP, FREUDENBERG IM HUNGÁRIA KFT
HELYSZÍN:
NYÍREGYHÁZA
ALAPTERÜLET:
KB. 17 000 m2
TERVEZÉS IDEJE:
2012
ÉPÍTÉSZ TERVEZŐK:
OBERMEYER, ÓBUDA GROUP - PLÁJER JÁNOS, DOBRÁNYI ÁKOS
SZAKÁGI KONZULENSEK:
PPR PLAM KFT, HUNGAROPROJEKT KFT
TRELLEBORG VIBRACOUSTIC LÉGRUGÓGYÁR
TERVEZÉS TÍPUSA:
GENERÁLTERVEZÉS: ÓBUDA GROUP
PROJEKTVEZETŐ: DOBRÁNYI ÁKOS
ENGEDÉLYEZÉSI TERV + SPECIFIKÁCIÓ
MEGBÍZÓ:
ÓBUDA GROUP, FREUDENBERG IM HUNGÁRIA KFT
HELYSZÍN:
NYÍREGYHÁZA
ALAPTERÜLET:
KB. 17 000 m2
TERVEZÉS IDEJE:
2012
ÉPÍTÉSZ TERVEZŐK:
OBERMEYER, ÓBUDA GROUP - PLÁJER JÁNOS, DOBRÁNYI ÁKOS
SZAKÁGI KONZULENSEK:
PPR PLAM KFT, HUNGAROPROJEKT KFT
NYÍREGYHÁZA, TRELLEBORG VIBRACOUSTIC LÉGRUGÓGYÁR







