DUNAVARSÁNY, NAPRÓZSA LAKÓPARK
ÉPÜLET MEGNEVEZÉS:
DUNAVARSÁNYI NAPRÓZSA LAKÓPARK FEJLESZTÉSI TERVJAVASLATA
TERVEZÉS TÍPUSA:
TANULMÁNYTERV
MEGBÍZÓ:
DUNAVARSÁNY-2000 KFT., SZOLLÁR ANDRÁS
HELYSZÍN:
DUNAVARSÁNY
ALAPTERÜLET:
KB. 9 500 M2 (27 DB LAKÓEGYSÉG)
TERVEZÉS IDEJE:
2020
ÉPÍTÉSZ TERVEZŐK:
DOBRÁNYI ÁKOS, KIS ALEXANDRA, ÖRLEY GERGELY, PARIZÁN BORI, SZÁSZ JUDIT
DUNAVARSÁNYI NAPRÓZSA LAKÓPARK FEJLESZTÉSI TERVJAVASLATA
TERVEZÉS TÍPUSA:
TANULMÁNYTERV
MEGBÍZÓ:
DUNAVARSÁNY-2000 KFT., SZOLLÁR ANDRÁS
HELYSZÍN:
DUNAVARSÁNY
ALAPTERÜLET:
KB. 9 500 M2 (27 DB LAKÓEGYSÉG)
TERVEZÉS IDEJE:
2020
ÉPÍTÉSZ TERVEZŐK:
DOBRÁNYI ÁKOS, KIS ALEXANDRA, ÖRLEY GERGELY, PARIZÁN BORI, SZÁSZ JUDIT
Szollár András mintegy két évtizede gondoskodik a terület fejlesztéséről, érzékeny az építési trendek változásaira. A korábban kialakult lakótömbök melletti központi tömb, és a tőle keletre elhelyezkedő lakótömb beépítésére néhány éve hallgatóI pályázatot írt ki. A pályázat alapján választotta ki a lakóterületek néhány épületének tervezőjét, és ezek időközben fel is épültek. A központi tömbre érkezett javaslatok azonban nem bizonyultak megvalósításra érdemesnek.
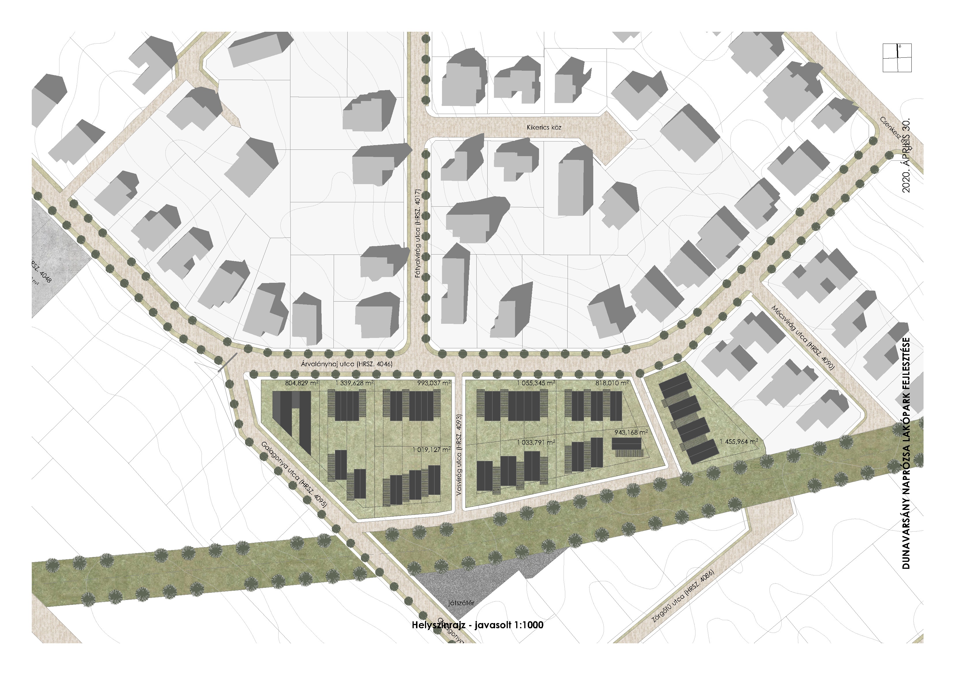
A mi javaslatunk elsősorban a szabályozási terv kismértékű kiigazítását tartalmazza annak érdekében, hogy egy szebb településképet adó és jobban kihasználható telekosztás jöhessen létre. Az ezirányú gondolkodásunkat egy hatfázisú folyamatábrán foglaltuk össze - feltüntetve az egyes verziókhoz rendelhető össz telekterületet, lakásszámot és beépíthető alapterületet.
Az így kialakult végső változatban optimalizálni tudtuk a telekosztást. Összesen kilenc darab telek kialakítását javasoltuk. A telkeken sorház-szerű beépítéssel állnának az épületek, jogilag társasházként. Kétféle háztípust dolgoztunk ki - egy szélesebbet (nappali + négy szoba), és egy keskenyebbet (nappali + két szoba).
A terület nyugati sarkában kialakított telekre építendő épület töltheti be az igényelt közfunkciót. Ennek tömeg-kialakítására több variációt is bemutattunk, de funkcióját tekintve nem tettünk javaslatokat. Elképzelésünk szerint lehetséges az emeleten lakásokat kialakítani, a földszinten pedig közösségi funkciót. Ha a későbbiek során a közfunkcióra nem sikerül piacképes megoldást találni, akkor akár a teljes épületben lakások készülhetnek.
Az így kialakult végső változatban optimalizálni tudtuk a telekosztást. Összesen kilenc darab telek kialakítását javasoltuk. A telkeken sorház-szerű beépítéssel állnának az épületek, jogilag társasházként. Kétféle háztípust dolgoztunk ki - egy szélesebbet (nappali + négy szoba), és egy keskenyebbet (nappali + két szoba).
A terület nyugati sarkában kialakított telekre építendő épület töltheti be az igényelt közfunkciót. Ennek tömeg-kialakítására több variációt is bemutattunk, de funkcióját tekintve nem tettünk javaslatokat. Elképzelésünk szerint lehetséges az emeleten lakásokat kialakítani, a földszinten pedig közösségi funkciót. Ha a későbbiek során a közfunkcióra nem sikerül piacképes megoldást találni, akkor akár a teljes épületben lakások készülhetnek.
DUNAVARSÁNY, NAPRÓZSA LAKÓPARK


















